,,,,,,,,

首頁 閥門百科

航天泵閥為您介紹三通料漿閥

2020-10-30 09:02:25 

陜西航天泵閥科技集團有限公司是以研發、生產、銷售及服務為一體的高新技術型化工閥門生產企業,專業生產鍛造球閥、三通球閥、清管閥、料漿閥、石油化工設備等產品,閥門品種齊全,在行業內率先通過ISO9001,CE國際認證等,并在各領域投入使用,用戶對我公司閥門產品高度認可,咨詢熱線:400-1800-803。

三通料漿閥通常用作改變介質的流動方向和分配介質該產品具有手動、電動、氣動、齒輪傳動等多種驅動方式。三通料漿閥在制紙、醫藥、染料化工、氧化鋁漿料等使用廣泛。

三通料漿閥

三通料漿閥

三通料漿閥的閥門結構:

1、閥瓣具有上下兩個密封面,可實現雙向密封。

2、上閥座對閥桿有支撐作用,可有效減小閥桿的彎曲變形。

3、填料箱下部設計有除污結構,能去除閥桿上的污物,防止污物對填料的損傷。

4、閥桿密封處,選用了柔性石墨和編織柔性石墨相結合。在填料箱中部為多層柔性石墨環,在柔性石墨環的上下為編織柔性石墨,編織柔性石墨填料能起到增加填料彈性,防止柔性石墨環被擠出的作用。

5、填料壓蓋有填料壓套和填料壓板組成,兩者通過球面副組合而成,當壓板上的螺母旋緊程度不均勻時,填料仍能均勻受壓,不至于影響填料密封。

6、手動裝置手輪采用撞擊式手輪,利用手輪的撞擊力來增加閥門的開啟及關閉力矩。

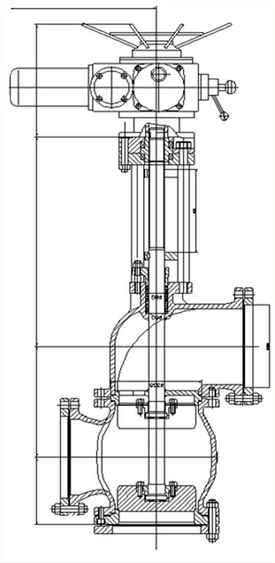
三通料漿閥結構圖

三通料漿閥結構圖

三通料漿閥的注意事項:

1、本閥門應存放于干燥的庫房內,嚴禁漏天存放。閥門通道應用封頭堵塞。如長期存放,應經常檢查,防止腐蝕。

2、安裝前,須仔細核對本閥門的標志、合格證是否符合使用要求,核實后,清洗管路,防止雜物進入閥門通道。安裝時應注意閥門對介質流向的要求。

3、發現故障應立即停止使用,查明原因并消除后再使用。

陜西航天泵閥科技集團有限公司堅持為客戶提供滿意的產品和服務,如果您有相關產品需求或者技術疑問,請撥免費熱線,陜西航天泵閥科技集團竭誠為您服務!

航天泵閥公眾號

陜西航天泵閥公眾號

航天泵閥——40年行業經驗沉淀閥門品牌,您身邊的閥門專家!為您提供最優質的產品與最有效的閥門問題解決方案,航天泵閥以“品質和產品”對待每個客戶,為您服務!免費熱線:400-1800-803

網友熱評