首页 煤化工阀门

锁渣、锁斗阀及冲洗水阀

锁渣、锁斗阀及冲洗水阀
  • 主要用于截断或接通管路中的介质,亦可用于...:

产品简介

G1610煤化工专用锁渣、锁斗阀及冲洗水阀是专门对煤化工工艺的介质为含用固态矿渣和灰粉的高温渣水,苛刻的介质对阀体的流道具有较大的冲蚀,对阀门的球体及阀座等动作部件及密封面冲蚀和磨蚀更大,G1610锁渣阀阀内件必须经过高技术的硬化处理使阀门具有较高的耐磨性能。

产品详情

产品简介

G1610煤化工专用锁渣、锁斗阀及冲洗水阀是专门对煤化工工艺的介质为含用固态矿渣和灰粉的高温渣水,苛刻的介质对阀体的流道具有较大的冲蚀,对阀门的球体及阀座等动作部件及密封面冲蚀和磨蚀更大,G1610锁渣阀阀内件必须经过高技术的硬化处理使阀门具有较高的耐磨性能。产品除了考虑硬化材质硬度外,更重要的考虑到硬化工艺,以达到除了硬度指数以外的其他指数达到要求,如:厚度、与基体结合力度、在温度骤变工况的硬度值及结合力、局部超大压力因素、局部大颗粒因素。由于集渣和排渣的周期为30分钟,因此在正常生产中该阀的开关次数频繁,高压到低压,高温到低温的交替变化较大,要求阀门除标准产品具有的非常好的使用寿命和较高的密封等级外,更要考虑完全满足严酷工况的设计和制造,检测工艺。

气化炉锁渣阀的球体与阀座完全采用金属对金属的密封形式,为了确保阀门在各种温度和压力下的可靠密封,针对用户的不同使用工况和要求,可以采用多种先进的球体和阀座的硬化技术,包括超音速喷涂、镍基喷焊、表面特殊硬化、硬质合金喷焊以及采用高强度硬度陶瓷材料等,球体和阀座的表面硬度HRC64,最高可达HRC74以上。密封面材料耐温一般可达540℃,最高可达980℃材料的结构强度可达到10000PSI以上。密封面材料还具有很好的耐摩擦性。

该阀门也可根据特殊工况,阀体与球体流道采用镶嵌420SAF2205内衬套的方式,有效增强了阀门的抗磨损性。

技术参数和性能

1.公称通径:DN300DN350DN400DN450DN500

2.公称压力:ANSI CLASS600900

3.连接方式:法兰式(RFRJ

4.球芯形式:固定球全通径或缩径

5.适用温度范围:-46~+550

6.泄漏等级:符合标准ANSI FCI 70-2CLASS VIV/API598,或按用户要求。

7.适用介质:固态矿渣/灰分的高温渣水

8.结构形式:两体式阀体结构

9.驱动形式:气缸;液压;手动可选

10.执行机构:进口单、双作用拔叉式执行机构

11.附件:过滤减压阀、定位器、气源扩大器、加速器等满足快速动作时间要求等

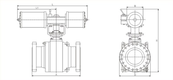
结构尺寸

锁渣、锁斗阀及冲洗水阀结构尺寸(带手轮)

结构尺寸表

锁渣、锁斗阀及冲洗水阀结构尺寸表(带手轮)

阀体材质

锁渣、锁斗阀及冲洗水阀体材质

主要零部件图

锁渣、锁斗阀及冲洗水阀主要零部件图

我要下单

  • 姓名
  • 手机
  • 留言

网友热评