,,,,,,,,

全國咨詢熱線:400-1800-803      029-86033698(轉739)

當前位置首頁 » 航天泵閥新聞中心 » 新聞動態 » 閥門百科 » 為您介紹對分式球閥

為您介紹對分式球閥

返回列表 來源:航天泵閥 查看手機網址
掃一掃!為您介紹對分式球閥掃一掃!
瀏覽:- 發布日期:2021-03-24 11:23:42【

陜西航天泵閥科技集團有限公司是以研發、生產、銷售及服務為一體的高新技術型化工閥門生產企業,專業生產鍛造球閥、三通球閥、清管閥、料漿閥、石油化工設備等產品,閥門品種齊全,在行業內率先通過ISO9001,CE國際認證等,并在各化工領域投入使用,用戶對我公司閥門產品高度認可。咨詢熱線:400-1800-803。

對分式球閥可應用于氣化爐渣水系統;氣化爐黑水、灰水系統多晶硅各大系統及其它渣漿系統對分式球閥具有壽命長、使用溫度高、耐磨性強、關斷零泄漏等特點,特別適合各種苛刻工況的特殊要求,是流體管線,粉料輸送管線等開關頻率高,密封要求高等場合理想的關斷閥門。

對分式球閥 

對分式球閥

對分式球閥的產品特點:

因其對分式結構,閥體中腔大,不結垢,便于拆裝檢修;球桿一體式,傳動精度高;球體表面和閥座表面經過表面硬化處理后,使其具備極強的耐磨性,能適應煤化工和多晶硅各系統有耐磨、耐沖刷要求以及耐腐蝕要求的工況,該類閥門具備了防彈簧失效、防結垢、防結焦等多功能(帶刮刀、帶吹掃)。

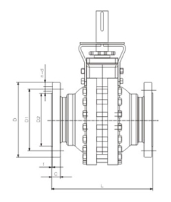
對分式球閥結構圖 

對分式球閥結構圖

技術規范和主要參數:

設計標準:API 6D、ASME B16.34;

結構長度:ASME B16.10;

法蘭尺寸:ASME B16.5;

試驗和檢驗:API 598、ASME B16.104;

壓力等級:150Lb ~900Lb;

溫度范圍:-40 ~320℃;

尺寸規格:2" ~20";

適用介質:灰水、黑水、煤漿、固體粉末及顆粒等。

如果您有相關產品需求或技術疑問,可以隨時撥打我們的24小時熱線,陜西航天泵閥科技集團竭誠為您服務。

航天泵閥公眾號 

陜西航天泵閥公眾號

 

航天泵閥——40年行業經驗沉淀閥門品牌,您身邊的閥門專家!為您提供最優質的產品與最有效的閥門問題解決方案,航天泵閥以“品質和產品”對待每個客戶,為您服務!免費熱線:400-1800-803

推薦閱讀

    【本文標簽】:航天泵閥閥門百科
    【責任編輯】:航天泵閥版權所有:http://www.tougechaya.com轉載請注明出處